Langue
🛒

Detalhes do Produto

PROJETO T3 GRAND VILA - 43800€

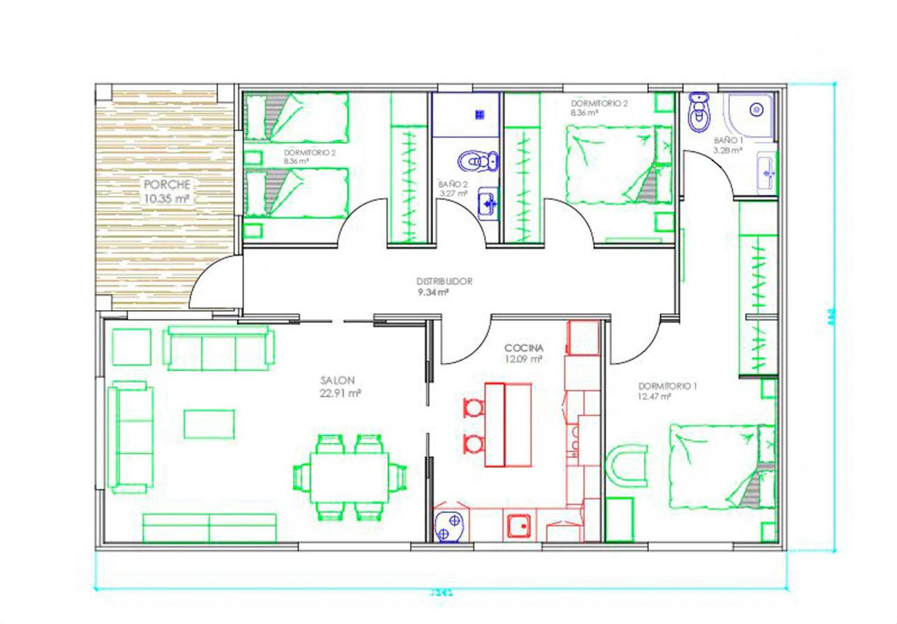
Moradia pré-fabricada de alta eficiência e design sofisticado Descubra esta moradia pré-fabricada de 3 quartos, pensada para quem procura conforto máximo, eficiência energética e acabamentos premium. Um verdadeiro lar sustentável, moderno e pronto a habitar. ⸻ 📐 Características principais: • 03 quartos duplos, incluindo uma suíte com casa de banho privativa e closet • 02 casas de banho completas • Alta eficiência energética com consumo praticamente nulo (NZEB) • Sistema domótico avançado ECHO para controlo inteligente da casa • Pack Efficient House: sistema fotovoltaico, aerotermia e chão radiante • Grandes janelas com vidro triplo para isolamento térmico e acústico • Cozinha com ilha totalmente equipada com electrodomésticos de alta gama ⸻ 🏠 Descrição detalhada: • Acabamento exterior Gran Villa com cobertura em telha cerâmica • Duplo isolamento nas paredes, telhado e pavimento para máximo conforto térmico e acústico • Pintura exterior pedra e detalhes em pedra Campaspero nos rodapés, janelas e esquinas • Alpendre com pilares em vigas laminadas e suportes em pedra • Beirais decorativos (“cães”) para proteção e estilo • Carpintaria exterior em imitação de madeira castanha • Janelas de vidro triplo com redes mosquiteiras incluídas • Aquecedor de ar para ACS (Água Quente Sanitária) de 110 litros incluído ⸻ 🍽️ Equipamento interior: • Sala com mesa extensível e sofá 3+2 confortáveis • Cozinha totalmente equipada com electrodomésticos integrados: • Frigorífico • Placa vitrocerâmica digital com 3 queimadores de indução • Máquina de lavar roupa • Máquina de lavar loiça • Forno e micro-ondas • Três quartos: • Suíte com casa de banho privativa e closet • Quarto com duas camas individuais • Quarto com cama de casal e cama canapé (extra armazenamento) • Portas de passagem adaptadas para maior acessibilidade • Radiadores elétricos de baixo consumo (x2) • Fita LED integrada em armários altos da cozinha (x3) ⸻ ✅ Extras e comodidades: • Redes mosquiteiras em todas as janelas (x8) • Móveis de cozinha de alta qualidade • Iluminação LED funcional e decorativa • Sistema domótico ECHO para controlo completo via smartphone • Aquecimento eficiente com aerotermia e piso radiante ⸻ 💡 Vantagens do T3 Gran Villa: • Construção sustentável com materiais de alta durabilidade • Design contemporâneo com acabamentos premium • Eficiência energética para redução máxima de custos • Conforto térmico e acústico excepcional • Ideal para residência permanente ou alojamento de alto padrão ⸻ Entre em contato para saber mais sobre financiamento, personalização e condições de entrega. Viva a experiência de um lar moderno, sustentável e confortável com o T3 Gran Villa!

Image

Opções de Pagamento Fraccionado

Entendemos que financiar um projeto imobiliário pode ser desafiante. Por isso, oferecemos soluções flexíveis de pagamento fraccionado para facilitar a compra da sua casa contentor, sem comprometer os seus objetivos.:

1 : Pagamento faseado – 30% na encomenda

Inicie o seu projeto com tranquilidade com um sinal reduzido. O valor restante será pago em várias parcelas, conforme cronograma acordado.

2 : Pagamento acelerado – 50% na encomenda

Acelere a produção e a entrega da sua casa móvel. O restante será pago no momento da entrega.

3 : Pagamento integral – 100% na encomenda

Escolha a simplicidade com o pagamento total no ato da encomenda e beneficie de entrega gratuita no seu domicílio.

4 : Transporte e Instalação

Oferecemos o serviço de transporte e instalação das nossas casas em todo o território nacional.
Nota: Os custos de transporte e instalação não estão sempre incluídos no preço de venda. O valor será calculado com base na localização do terreno e nas condições de acesso.

Após a confirmação da encomenda, entraremos em contacto para: Avaliar o local de entrega Confirmar a viabilidade do acesso Apresentar, se necessário, um orçamento adicional O terreno deve estar limpo, nivelado e acessível a camiões. Se for necessário o uso de grua ou outro equipamento especial, será informado antecipadamente.

Estamos comprometidos em tornar sua experiência de compra a mais tranquila possível. Se tiver dúvidas sobre o processo de pagamento, não hesite em nos contactar.

Chargement...
Loading…
Loading the web debug toolbar…
Attempt #